X Account

5013 Pinehill RoadBellevue, NE 68133

2 Total Photos [Click to View All]

NP Dodge Real Estate
402.255.5099
Connect With a Local Expert
5BEDROOMS 4TOTAL BATHS 2,993SQUARE FEET Active STATUS

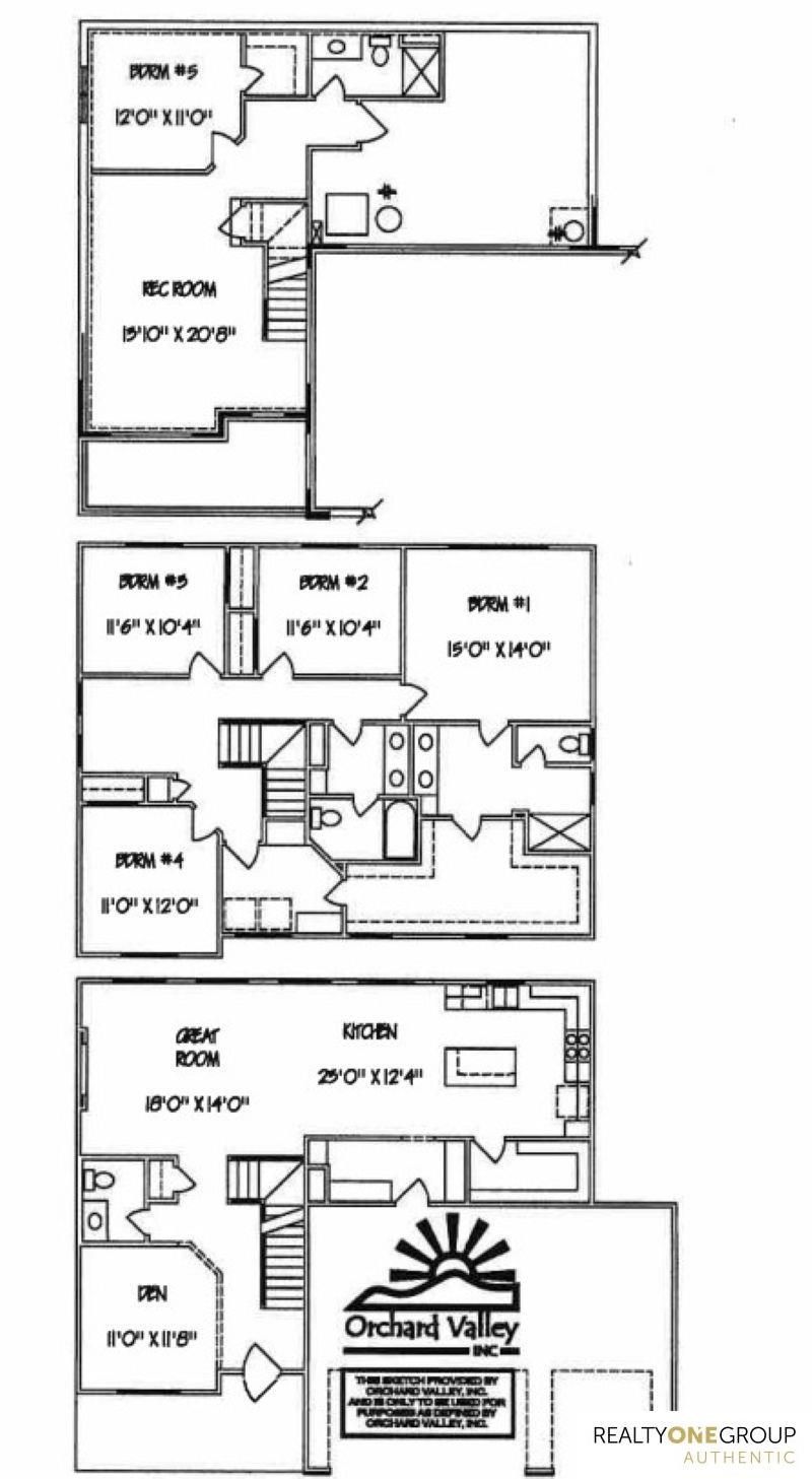
Photos and floorplans are renderings of future construction. Price includes home and lot. Sale is contingent upon buyer entering into a construction agreement with Orchard Valley Homes. Estimated completion timeline available upon request.

5013 Pinehill Road | MLS# 22530205

This single family home located at 5013 Pinehill Road, Bellevue, NE 68133 is currently listed for sale with an asking price of $586,045. This property was built in 2026 and has 5 bedrooms with 2993 sq. ft. Pinehill Road is located in the ALTA COLLINA subdivision within the Bellevue school district. Search ALTA COLLINA real estate on www.npdodge.com today.

READ MOREREAD LESS

Details

Property Type
Residential - Single Family Residence
Days on Site
136
Status
Active
MLS
22530205
Home Style
2 Story
Subdivision
ALTA COLLINA
County
Sarpy
Garage Spaces
3
Year Built
2026
Original Price
$586,045
DIRECTIONS TO PROPERTY
Use GPS

Schools

School District
Bellevue
Elementary
Two Springs
Middle / Junior
Bellevue Mission
Senior / High
Bellevue West

Exterior

Lot Dimensions
70 x 130
Garage Type
Attached
Fence
None
Roof Type
Composition
Lot Description
Up to 1/4 Acre.

Interior

Primary Bedroom Level
2nd
Basement
Yes
Basement
Walkout, Finished
Total SqFt
2,993
Main Floor SqFt
1,038
Second Floor SqFt
1,308
Total Below Grade Finished SqFt
647
Appliances Included
Range -- Cooktop + Oven, Dishwasher, Disposal, Microwave

Dimensions & Layout

Room
Dimensions (FT)
Level
Description
Kitchen
23 X 12.3333
Main Floor
Great Room
18 X 14
Rec Room
13.10 X 20.8
Basement
Primary Bedroom
15 X 14
2nd Floor
Bedroom 2
11.5 X 10.3333
2nd Floor
Bedroom 3
11.5 X 10.3333
2nd Floor
Bedroom 4
11 X 12
2nd Floor
Bedroom 5
12 X 11
Basement
Laundry Room
Main Floor

Bathrooms

Level
Full
3/4
1/2
Rough-in
Total
Main Floor
Full: 0
3/4: 0
1/2: 1
Rough-in: 0
Total:
2nd Floor
Full: 1
3/4: 1
1/2: 0
Rough-in: 0
Total:
Below Grade
Full: 0
3/4: 1
1/2: 0
Rough-in: 0
Total:
All Levels
Total Full: 1
Total 3/4: 2
Total 1/2: 1
Total Rough-in:
Total:

Utilities

Cooling
Central Air
Heating
Natural Gas, Forced Air
Fuel Type
Gas
Sewer
Public Sewer
Water
Public

Taxes & Fees

Tax Amount
$770
Tax Year
2024
Financing Terms
VA Loan, FHA, Conventional, Cash

Area Information

Bellevue

Incorporated in 1855, Bellevue played an important role in the development of the metropolitan community and is Nebraska’s oldest continuous town. Established as a fur trading settlement in 1822 for Native American tribes and French-Canadian trappers, it was called Belle Vue (beautiful view) by most of them. This name eventually was adopted as the official name for the settlement.

Bellevue experienced great fluxes in population and its economy during the 19th century. In 1890—to encourage expansion—the town offered inexpensive land for development. This resulted in the establishment of Fort Crook which was later redesigned and named Offutt Air Force Base. A Martin bomber plant opened on base at the start of World War II, employing thousands of civilian and military people. And the population boom began!

Today, Offutt is home to the 55th Wing, United States Strategic Command and the Air Force Weather Agency. The presence of this military installation has not only multiplied the population many times over, but has resulted in the construction of homes and the establishment of technical services, businesses, and retail outlets to serve the military. These businesses have been the basis for an expanding economy which now serves the civilian population as well. Additionally, the Kennedy Freeway—a limited access highway—provides easy access to employment and entertainment in all areas of Omaha/Council Bluffs.

At this time, Bellevue’s population exceeds 63,000 people (2022). It is home to Bellevue University, two growing public high schools, plus numerous public and parochial middle and elementary schools. Its population consists of many ages, races, religions, and cultures. Homes of all ages, styles and prices, as well as apartments and condominiums offer reasonable housing options. Parks, trail systems and Fontenelle Forest—a popular nature center—provide year-round outdoor activities, while theaters and historical sites are venues for cultural programs.

If you are ready to start your home buying or selling journey, browse the newest homes for sale in Bellevue, NE. You can also contact us—we are here to help!

EXPLORE NEIGHBORHOOD

Demographics

Mortgage Calculator

ESTIMATED MONTHLY PRICE: $4,237.09
=
blank Principal Taxes INS / PMI Other Total
Monthly $3,518.99 $64.17 $653.93 $0.00 $4,237.09
Yearly $42,227.88 $770.04 $7,847.16 $0.00 $50,845.08
Total $1,266,836.40 $23,101.20 $159,474.58 $0.00 $1,449,412.18
Results from this calculator are designed for comparative purposes only, and accuracy is not guaranteed.

We have mortgage solutions for your homeownership aspirations. When you're ready to look or buy, or possibly refinance, I'll put my expertise to work and be with you every step of the journey.

Count on a personalized and seamless experience—all the way to closing. Start the pre-qualification process by using our easy online application!

Start the process!
Loan Officer Image
Stephanie Reinhardt NMLS# 623803 Mortgage Loan Officer

Login to My Homefinder

Pixel

Request Information

Call Us Now: 402-255-5099

Have a question?

Custom Form