X Account

6313 S 214th AvenueElkhorn, NE 68022

2 Total Photos [Click to View All]

NP Dodge Real Estate
402.255.5099
Connect With a Local Expert
5BEDROOMS 4TOTAL BATHS 2,993SQUARE FEET Active STATUS

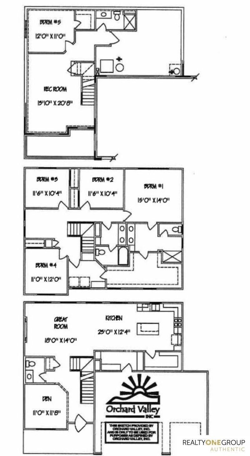
Photos and floorplans are renderings of future construction. Price includes home and lot. Sale is contingent upon buyer entering into a construction agreement with Orchard Valley Homes. Estimated completion timeline available upon request.

6313 S 214th Avenue | MLS# 22530211

This single family home located at 6313 S 214th Avenue, Elkhorn, NE 68022 is currently listed for sale with an asking price of $619,545. This property was built in 2025 and has 5 bedrooms with 2993 sq. ft. S 214th Avenue is located in the COVENTRY WOOD subdivision within the Gretna school district. Search COVENTRY WOOD real estate on www.npdodge.com today.

READ MOREREAD LESS

Details

Property Type
Residential - Single Family Residence
Days on Site
144
Status
Active
MLS
22530211
Home Style
2 Story
Subdivision
COVENTRY WOOD
County
Douglas
Garage Spaces
3
Year Built
2025
Original Price
$619,545
DIRECTIONS TO PROPERTY
Use GPS

Schools

School District
Gretna
Elementary
Falling Waters
Middle / Junior
Gretna
Senior / High
Gretna

Exterior

Lot Dimensions
76.8 x 130
Garage Type
Attached
Fence
None
Roof Type
Composition
Lot Description
Up to 1/4 Acre.

Interior

Primary Bedroom Level
2nd
Basement
Yes
Basement
Walkout, Finished
Total SqFt
2,993
Main Floor SqFt
1,038
Second Floor SqFt
1,308
Total Below Grade Finished SqFt
647
Fireplace
Electric
Appliances Included
Range -- Cooktop + Oven, Dishwasher, Disposal, Microwave

Dimensions & Layout

Room
Dimensions (FT)
Level
Description
Kitchen
23 X 12.3333
Main Floor
Great Room
18 X 14
Rec Room
13.10 X 20.8
Basement
Primary Bedroom
15 X 14
2nd Floor
Bedroom 2
11.5 X 10.3333
2nd Floor
Bedroom 3
11.5 X 10.3333
2nd Floor
Bedroom 4
11 X 12
2nd Floor
Bedroom 5
12 X 11
Basement
Laundry Room
2nd Floor

Bathrooms

Level
Full
3/4
1/2
Rough-in
Total
Main Floor
Full: 0
3/4: 0
1/2: 1
Rough-in: 0
Total:
2nd Floor
Full: 1
3/4: 1
1/2: 0
Rough-in: 0
Total:
Below Grade
Full: 0
3/4: 1
1/2: 0
Rough-in: 0
Total:
All Levels
Total Full: 1
Total 3/4: 2
Total 1/2: 1
Total Rough-in:
Total:

Utilities

Cooling
Central Air
Heating
Natural Gas, Forced Air
Fuel Type
Gas
Sewer
Public Sewer
Water
Public

Taxes & Fees

Tax Amount
$22
Tax Year
2024
Financing Terms
VA Loan, FHA, Conventional, Cash

Area Information

Elkhorn

Annexed by the city of Omaha in 2005, Elkhorn has not lost its small town atmosphere while adding numerous new subdivisions and businesses to its perimeter. The original city was located on the eastern bluff overlooking the Elkhorn River, primarily on the south side of what is now Maple Street. Its downtown reflects the charm of its earlier days with several buildings from the late 19th and early 20th century still in use.

The community was first populated in the mid-1800s as a result of the fertile land and water availability in the area. Transportation on the Elkhorn River to the Platte and then to the Missouri was also a strong consideration in its selection. The area was platted in 1867 and incorporated in 1886. When the Union Pacific Railroad line moved westward through Elkhorn, the town became a water station and the home of many UP employees. Business, agriculture, and commerce flourished with the railroad’s presence.

As its population grew, more emphasis was placed on entertainment, religion and education. These activities remain strong today with many churches, recreational facilities and schools serving the area. Today, the Elkhorn Public School District educates over 5,000 students in six elementary, two middle, and two high schools. There are also several large parochial schools, as well.

The Elkhorn area continues to be an attractive residential option for people of all ages and requirements. Apartments, townhomes, and single-family dwellings are available in many price ranges. The Dodge Expressway provides convenient passage for commuters as well. Other amenities—medical facilities, an abundance of services and retail outlets, Village Pointe Shopping Center, and grocery stores are conveniently located close by, making Elkhorn a convenient and special place to live.

If you are ready to start your home buying or selling journey, browse the latest real estate listings in Elkhorn, NE. You can also contact us—we are here to help!

EXPLORE NEIGHBORHOOD

Demographics

Mortgage Calculator

ESTIMATED MONTHLY PRICE: $4,413.29
=
blank Principal Taxes INS / PMI Other Total
Monthly $3,720.15 $1.83 $691.31 $0.00 $4,413.29
Yearly $44,641.80 $21.96 $8,295.72 $0.00 $52,959.48
Total $1,339,254.00 $658.80 $168,590.60 $0.00 $1,508,503.40
Results from this calculator are designed for comparative purposes only, and accuracy is not guaranteed.

We have mortgage solutions for your homeownership aspirations. When you're ready to look or buy, or possibly refinance, I'll put my expertise to work and be with you every step of the journey.

Count on a personalized and seamless experience—all the way to closing. Start the pre-qualification process by using our easy online application!

Start the process!
Loan Officer Image
Stephanie Reinhardt NMLS# 623803 Mortgage Loan Officer

Login to My Homefinder

Pixel

Request Information

Call Us Now: 402-255-5099

Have a question?

Custom Form